Hallo
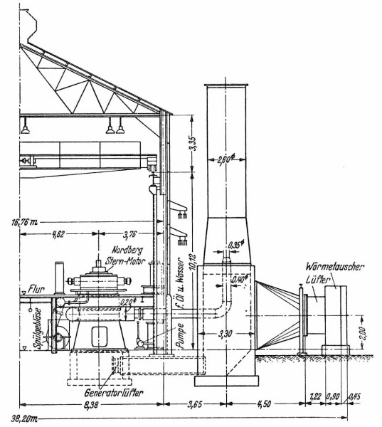
Ich hatte ja schon angedroht, etwas über die Verwendung der Nordberg Sternmotoren zu schreiben. Ich habe zu diesem Thema eine Beschreibung des Alcoa Kraftwerks in Point Comfort, Texas gefunden. Im Bild sieht man einen Schnitt durch eine Motorenanlage. Je Maschinenhalle bafanden sich 40 dieser Motorenanlagen, 20 auf jeder Seite. Damit ergab sich eine Innenansicht, wie man sie im 1. Betrag sehen kann. Die Hallen hatten eine Länge von 135 Metern und pro Halle wurden nur 3 Maschinisten zur Bedienung und Überwachen zuf Verfügung. Ihnen standen Motorroller zur Fortbewegung zur Verfügung (jaja, die sportlichen Amis

). Störungen, z.B. Übertemperaturen oder zu niedriger Öldruck führten zu einer automatischen Abschaltung der Motorenanlage, die durch rote Wanlampen angezeigt wurden.

- Alcoa_Schnitt.jpg (59.67 KiB) 6698 mal betrachtet
Die ganzen Nebenaggegate wurden im Kellergeschoss angeordnet. Auf dem Bild fällt wieder das dünnwandige geschweißte Motorengestell auf. Drumherum ist die Abgas-Ringleitung, links im Hintergrund das elektrische Spülluftgebläse und ganz rechts der Ölkühler (Wasser/Öl Wärmetauscher)

- Im_Keller.jpg (182.38 KiB) 6698 mal betrachtet
Die speziellen Umweltbedingungen rund um die Aluminiumhätte machten ein besonderes Luftfilterkonzept notwendig. Bei der Aluminiumherstellung fiel sogenannter
Rotschlamm an, der sehr feinkörnig war und bei Wind in großen Mengen aufgewirbelt wurde. die ganze Umgebung wurde dadurch mit dem roten Staub eingenebelt. Durch den großen Luftdurchsatz der Gasmotoren wäre der ganze Staub in die Kraftwerkshallen gesaugt worden. Deshalb erfolgte die Luftzufuhr in die Halle durch jeweils 10 riesige Luftfilter auf dem Hallenfirst, die Motoren selber hatten dann aber keine eigenen Luftfilter mehr.
Die Außmaße der Rotschlammdeponie in point Comfort kann
hier man bei Google Maps gut sehen.
Und wenn man schon bei google Maps ist, kann man auch gleich die Überreste der insgesamt
6 Kraftwerkshallen "besichtigen". Man kann noch schön die zwei Reihen mit jeweils 20 runden Motorfundamenten sehen, außerdem daneben die Fundamente für die kombiniterten Kühl- und Auspufftürme. Die eigentliche Aluminiumhütte mit den Schmelzflusselektrolysebecken befand sich gleich sündwestlich im Anschluss an die Kraftwerkshallen.
Gruß vom nebeligen Bodensee
Christian